Description
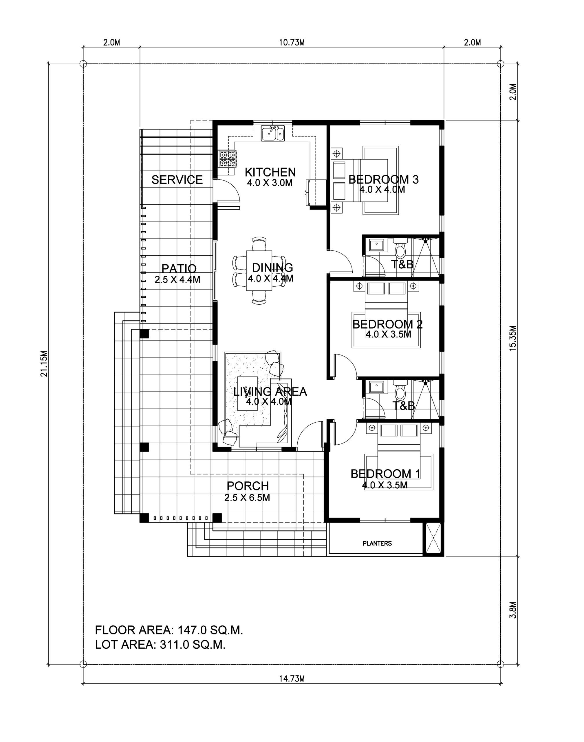
Check out this new design of one storey house with 3 bedrooms. ThisĀ design is elevated at 600 mm from finish grade line. Opening the main door will lead you to the Living area which is 16 square meters in area.
In line with the living area is the dining room and kitchen with a combined area of 28 square meters. The outside is very cozy with open porch, patio and service the the back. The roof consist of a concrete slab and Patio is covered with trellis made of tubular steel. In the kitchen, the door will lead to the service area where you can do additional work such as dirty kitchen or laundry.
At the right side consists of the 3 bedrooms. At the front is Bedroom 1 with 4 by 3.5 meters in size, next to it is the common toilet and bath that accommodates bedroom 1 and 2. At the back is bedroom 3 which serves as the master’s bedroom with an en-suite toilet and bath.
This design is 147 square meters total floor area that will require at least 300 square meters lot. If you have a lot the is 15 meters in frontage width and 21 meters in depth, this design is absolutely for your taking.











