Beautiful Two Story with 3 Bedrooms
Another concept is this beautiful two story with 3 bedrooms having a total floor area of 147 square meters that can be built in a lot with 10 meters width and 17 meters depth ( 170 square meters). With this lot size, the distance of the house from the front wall to the boundary fence is 3 meters and 2 meters at the back. Both side is designed to have a setback of 1.5 meters from the boundary fence.
The ground floor plan consists of the elevated porch and opening the front door will lead you to the living room. At the middle is the common toilet and bath and the stairs going to the second floor. At the back is dining and kitchen measuring 7.0 meters by 3.5 meters or 24.5 square meters combined area.
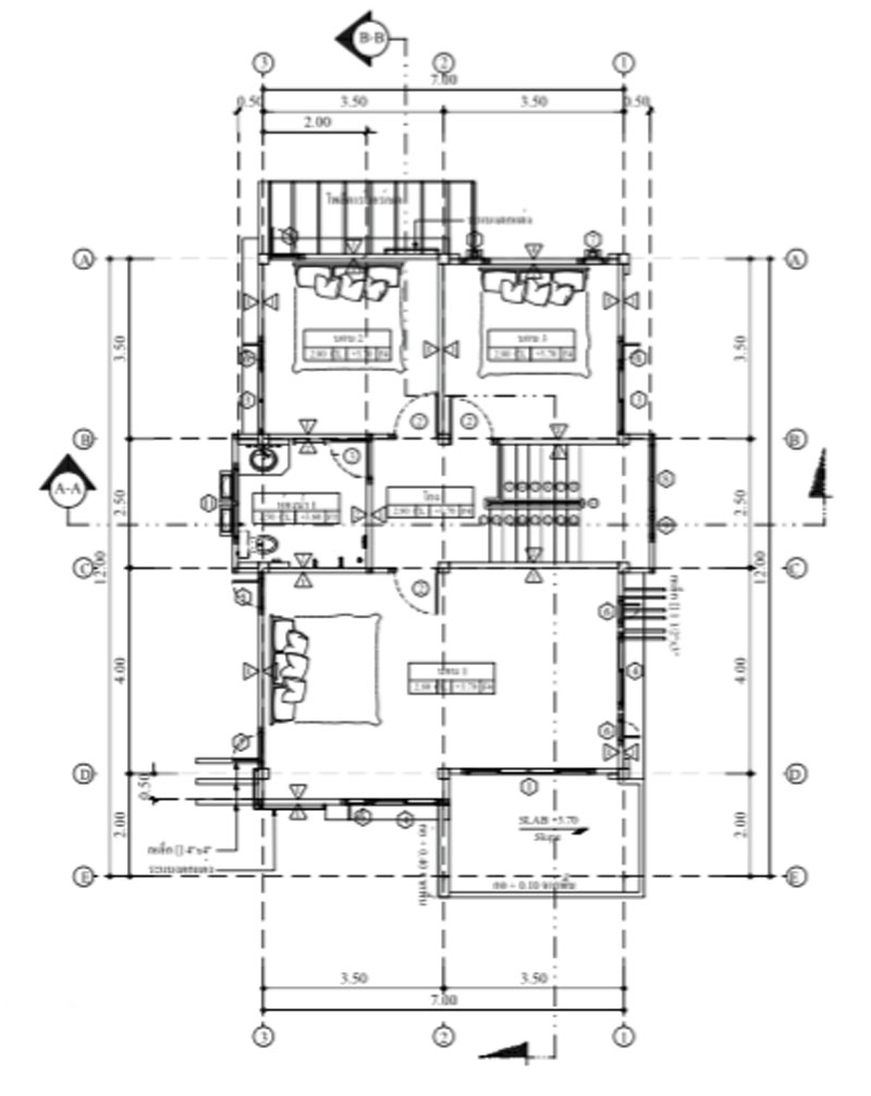
The second floor consists of the master’s bedroom near the front. The slab roof covering the porch below can also be converted to a balcony which is very useful when viewing the front scenery of the house. Common toilet and bath is located at the center of the second floor which is a very efficient location for access to every room. The two common bedroom are located at the back.




Below area the detailed floor plan for the ground floor and second floor.


Taking a closer look at the exterior of the actual house shot in different angles, truly amazing design.





Below are some interior images taken from the actual house.














