Classic three-bedroom bungalow with a worship room
Hello, guys. Today we are featuring a classic bungalow that has three bedrooms, a living room, and a worship room. For those who love the traditional or classic appearance of a house, this one looks perfect for the exterior design projects more classic features than contemporary.

Classic as it is, it used neutral colors like brown and beige and complemented with white that was used to paint its trimmings and frames. The facade projects a subtle, peaceful and calm ambiance. It may not be as cheerful as other houses but this one looks a little more conservative.
To build this house, you need a budget of at least USD 80,000 or 4 million Philippine pesos to start the construction and bring it to a 100% completion of the structure. The other important elements like tiles, doors, windows, cabinets, roof, painting may need another USD 20,000 dollars or more depending on your requirements. So, if you want to achieve this look, you need a budget of USD 90,000 or even more. It can be reduced or increased depending on the quality of finishing and furnishing that you want.

Product Specifications:
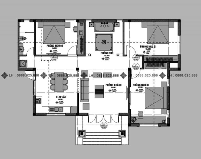
- 1-story contemporary house
- 3 bedrooms
- 1 bathroom
- 1 living room
- kitchen and dining
- porch
- open parking
- Budget: USD 80,000-90,000 or Php 4-4.5M


If you like this design and would like to request for the floor plan, you may contact us by leaving your comment here. Our architects will be very glad to have you assisted. We post different designs every day which you can use for your inspiration. You can browse through our other designs and contact us if you need further assistance.
You may want to check our other websites, as well. You can click on the following hyperlinks and you will be redirected to the websites. There are many designs for you to choose from. Each design has its own unique features where you may get ideas from to build your own. If you like the design, please don’t forget to share on your wall for others to see. Sit back and enjoy. Visit us again soon. Thank you!









